Modern Gallery
Zgłoś naruszenie...
Wybierz jedną z poniższych opcji.
Ten komentarz dotyczy mnie lub znajomego:
atakuje mnie,
atakuje znajomego.
Komentarz dotyczy czegoś innego:
spam lub oszustwo,
propagowanie nienawiści,
przemoc lub krzywdzące zachowanie,
treść o charakterze erotycznym.
Napisz
PANEL

olaamelia

wpisy na blogu

Okna i Drzwi 1

Blog:  olaamelia
Data dodania: 2015-09-28

Parę dni minęło i doszły nam kolejne elementy naszego domu. Pojawiły się w domu okna i drzwi wejściowe (narazie do piwnicy). Montaż odbył się w przeciągu 2 dni. Dzisiaj tj poniedziałek 28.09 mamy już 92 dzień kalendażowy budowy, 32 dni robocze od pierwszej łopaty, 12 dni montażu domu przez Sendom w tym 1 dzień ekstra na poprawki komina.

Dni roboczych Sendomu 12 a kalendażowo równo 31 pełny miesiąc od 28.08 do 28.09.

Montaż okien:

Okna jeszcze na ciężarówce

blog budowlany - mojabudowa.pl

Montaż przy pomocy dźwigu:

blog budowlany - mojabudowa.pl

Jedna strona do połowy zrobiona...

blog budowlany - mojabudowa.pl

 

Komin - ciąg dalszy

Blog:  olaamelia
Data dodania: 2015-09-10

Komin który przyjechał do nas w całości musiał być wczoraj tj środa 09.09 (73, 29, 9) nadbudowany ponieważ jego pierwszy odcinek siedział w domu. Przypomnę tylko że Sendom przywozi komin w całości z rurami, czopuchami itp. Nasz z racji piwnicy wyszedł za długi i za ciężki do transportu i dźwigania. Kawałek musiał być nadbudowany no i obrobiony odpowiednio.


 blog budowlany - mojabudowa.pl

Dzień później komin nabrał szlachetności i zyskał na wyglądzie...

blog budowlany - mojabudowa.pl

blog budowlany - mojabudowa.pl

Koniec montażu - stan surowy

Blog:  olaamelia
Data dodania: 2015-09-10

Wtorek był ostatnim dniem montażu domu w stan tzw surowy. Ekipa monterska od montażu powinna jeszcze wstawić drzwi i okna ale ze względów logistycznuch na razie jest to nie możliwe (ramy okienne czekają w Sendomie na szyby).

Trochę statystyki:

dni budowy brutto: 72

dni budowy netto: 28

dni montażu domu w całość: 8.

Wiecha wisi - małe pijaństwo też się odbyło - tradycji stało się za dość.

blog budowlany - mojabudowa.pl

Wnętrze jest uzbrojone w całości w stelaże pod ścianki działowe oraz doszły daszki nad wejściem do domu oraz zejściem zewnętrznym do piwnicy.

Dół:

blog budowlany - mojabudowa.pl

Góra, a raczej wchodzę na górę:

blog budowlany - mojabudowa.pl

Stoję w garderobie:

blog budowlany - mojabudowa.pl

Widok na przestrzał z sypialni pd-wsch do łazienki.

blog budowlany - mojabudowa.pl

Daszki nad wejściami:

blog budowlany - mojabudowa.pl

blog budowlany - mojabudowa.pl

 

3 Komentarze
mariofx  
Data dodania: 2015-09-10 12:59:29
Widać postęp prac, choć na razie szkielety ścnian utrudniają wyobrażenie sobie efektu końcowego (który na pewno będzie zacny). :) Rozumiem,że ta belka podporowa naprzeciwko kominka jest tylko tymczasowa?
odpowiedz
Data dodania: 2015-09-10 13:59:53
Podciąg i podpora są w projekcie i u nas będą odkryte dla zaakcentowania z czego domek jest wykonany.
odpowiedz
Odpowiedź do mariofx
alchmikk
Data dodania: 2015-09-13 14:01:45
Rozumiem, myślałem, ze w projekcie przestrzeń podłogi jest bez podpór. Wydaje się być trochę blisko kominka, ale jak nie będzie przeszkadzać w komunikacji to czemu nie.
odpowiedz
Odpowiedź do olaamelia

Kolejne 3 dni montażu

Blog:  olaamelia
Data dodania: 2015-09-04

Kolejne 3 dni montażu za nami. Pojawiły się nowe elementy domu.

Przykryty dach i łaty.

blog budowlany - mojabudowa.pl

We wnętrzu znalazło się miejsce na schody i komin:

blog budowlany - mojabudowa.pl
 

blog budowlany - mojabudowa.pl

Pierwsze stelaże pod ścianki działowe:

blog budowlany - mojabudowa.pl

 

4 Komentarze
mariofx  
Data dodania: 2015-09-06 13:23:25
Czy komin jest uwzględniony w pierwotnym projekcie czy został dodany na waszą prośbę? Czy firma Sendom podawała wam jakieś teoretyczne wyliczenia na zużycie roczne energii domu w wersji Energo Plus? Bo pisałem do nich w tej sprawie, ale od prawie tygodnia nie dostałem jakiejkolwiek odpowiedzi. Pozdrawiam i czekam z niecierpliwością na kolejne zdjęcia.
odpowiedz
Data dodania: 2015-09-07 12:05:30
Jeśli mogę tak napisać to domy z Sendomu są jak samochody kupowane w salonie. Bierzemy na początek 2 warianty wyposażenia: standard lub Energo+. Po za tym jest trochę tematów do wyboru i tak właśnie jest z kominem jako wyposażeniem dodatkowym. Za komin się dopłaca. Część tematów z wyposażenia można zamienić w cenie lub za dopłatą np.: schody sosnowe można zamienić na jesionowe - dopłata, ogrzewanie podłogowe na kalafiory i w drugą stronę tak samo itp. itd. Projekt budowlany który się kupuje z domem zawiera w sobie wyliczenia tzw bilansu energetycznego + porównanie dwóch wariantów ogrzewania w naszym przypadku było to porównanie gazu do pompy ciepła. Z tego co pamiętam to w naszym wariancie roczne zużycie gazu wyliczone jest na około 1,5 tyś zł (sprawdzę w projekcie i dam znać).
odpowiedz
Odpowiedź do mariofx
mariofx  
Data dodania: 2015-09-07 14:58:00
Dzięki serdeczne za odpowiedź. Wczoraj na stronie Sendomu doszukałem informacji i znalazłem przykładowe wyliczenia dla różnego rodzaju ogrzewania (dla Modern II), wiec trochę mi to przybliżyło temat. 1,5 tyś na rok to brzmi świetnie. Co przewidujecie kłaść na ogrzewanie podłogowe na dole i na górze, same płytki czy moze coś innego (czytałem, że są specjalne panele, które można układać na podgrzewaną podłogę). Pozdrawiam.
odpowiedz
Odpowiedź do olaamelia
Data dodania: 2015-09-08 12:37:18
Generalnie mamy wszędzie podłogówkę. Co do podłóg to w piwnicy będą kafle, na parterze panele certyfikowane na ogrzewanie podłogowe w klasie ac5 8mm a na poddaszu także panele ale słabsze. Teraz coraz więcej firm robi panele z certyfikatem na podłogówkę od QuickStepa, Kronopol po Classena. Najważniejsze to Panele muszą mieć odpowiedni znaczek (http://www.inzynierbudownictwa.pl/images/stories/artykuly/ubezpieczenia/ogrz-podl-3.jpg). Temat certyfikowanych paneli na podłogówkę to tak ostatni rok góra max 2. Jest nawet już deska z certyfikatem na podłogówkę ale koszta...
odpowiedz
Odpowiedź do mariofx

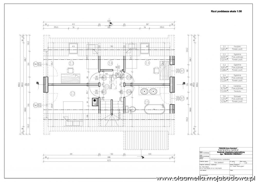
Rzuty: parter i piętro

Blog:  olaamelia
Data dodania: 2015-08-31

Teraz będzie można sobie wyobrazić miniej więcej jaki będzie układ wnętrza.

Parter:

blog budowlany - mojabudowa.pl

Piętro:

blog budowlany - mojabudowa.pl


5 Komentarze
Data dodania: 2015-08-31 19:15:19
Wreszcie jakiś dom szkieletowy! Mój architekt jest fanem tego typu konstrukcji i bardzo mnie namawiał, ale ja jednak zostałem przy tradycji murowanej :) Widzę pomieszczenia ciekawe i bardzo przemyślane.
odpowiedz
Data dodania: 2015-09-01 22:38:01
Może to trywialne ale mnie przekonało jedno: takie domy buduje się w Skandynawii czy w Kanadzie na Syberii też a betonowce w Afryce północnej czyli Egipt i Tunezja, Włosi czy Grecy też nie gardzą tą technologią. Jak się spytasz Egipcjanina dlaczego to on na to że przecież beton chłodzi... a nie grzeje. Jest to trochę śmieszne ale tak jest. Przekonałem się i wolę ściany z 35cm wełny niż z czegoś innego. Tematyka na co najmniej nie jedną pracę doktorską. Pozdrawiam.
odpowiedz
Odpowiedź do niebieska
mariofx  
Data dodania: 2015-09-01 12:33:57
Powodzenia!
Firmę Sendom znalazłem już ponad rok temu i kto wie czy w niedalekiej przyszłości nie zdecuduję sie na budowę właśnie Modern I. Można zapytać jaki rodzaj ogrzewania planujecie mieć w domu?
odpowiedz
Data dodania: 2015-09-01 22:44:14
Z racji medium w ulicy będzie to gaz. Na każdym poziomie ogrzewanie podłogowe. Rekuperacja w pakiecie Energo+ i powinno styknąć. Awaryjnie będzie koza, kiedyś nie od razu. Na razie wierzymy że tego gazu będzie naprawdę niewiele. Pozdrawiam.
odpowiedz
Odpowiedź do mariofx
mariofx  
Data dodania: 2015-09-04 11:47:32
Jeśli jest dostęp do gazu to wydaje się być dobrym roziwązaniem. Jak postęp prac, wszystko idzie zgodnie z planem?
odpowiedz
Odpowiedź do olaamelia
olaamelia OBSERWUJ BLOGA
statystyki bloga
Odwiedzin bloga: 21126
Komentarzy: 141
Obserwują: 47
Wpisów: 60 Galeria zdjęć: 186 Koszty
Projekt MODERN I ENERGO+
BUDYNEK - dom wolnostojący , parterowy z poddaszem z piwnicą
TECHNOLOGIA - drewniana-szkielet
MIEJSCE BUDOWY - Gdańsk
ETAP BUDOWY - VII - Wykończenia