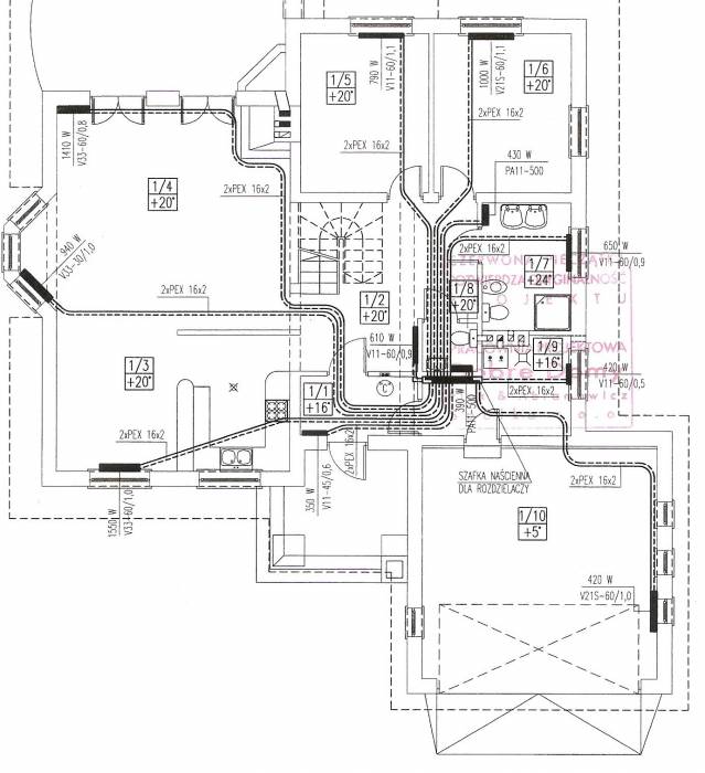
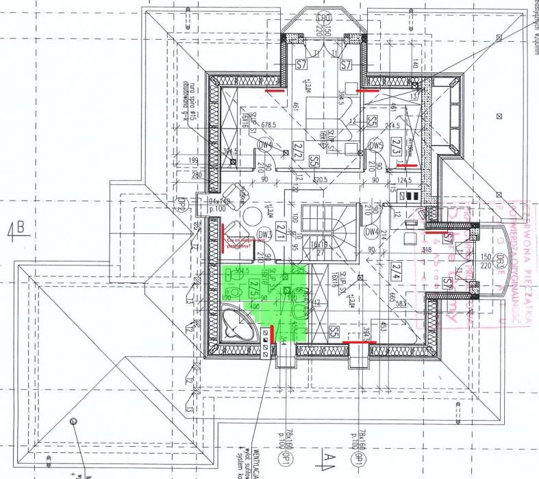
61. Przed wylewkami
Data dodania: 2014-08-22
Pietro - Styropian Termoorganika Silver Podloga

Parter - PIR 10cm



















Dzis dorzuce zdjecia. Robota zrobiona. Tylko male poprawki po ekipie.
Komentarze