Witam
W tym tygodniu spotkaliśmy się z Panią Architekt, aby omówić dalszy ciąg planu domu. Postanowiliśmy go nieco zmniejszyć, tzn. głównie zależało nam, aby salon był ciut mniejszy niż wcześnie zakładaliśmy, więc z 28m kw. jest teraz 26m kw. co dla nas jest absolutni OK. Niestety kuchnia się zmniejszyła przez to o 1m kw. co troszkę mnie boli, więc jest teraz 12 m kw. co niby jest dużo, ale zawsze może być więcej :)
Jak wykonaliśmy wizualizację kuchni, to powinno się zmieścić wszystko to co sobie zamarzyliśmy. Więc na razie jest OK.
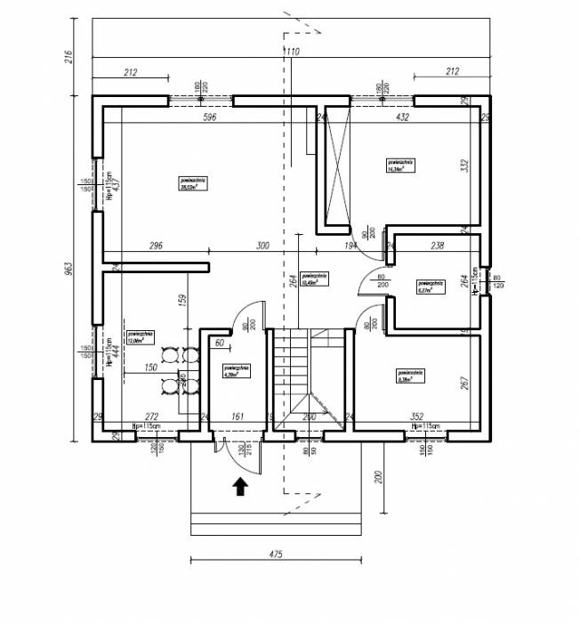
a oto rzut parteru

Na rzucie nie ma tylko zaznaczonych drzwi od kotłowni, ale na pewno one tam będą.
Wyznaczony został ganek i weranda tylnia.
Na poddaszu jak pisaliśmy wcześniej będą tylko dwa pokoje wyszły one ponad 36m kw (po podłodze) co jest bardzo fajne :). Jeden pokój w przyszłości będzie można podzielić na dwa mniejsze pokoje (ok. 17 m kw. po podłodze), ale na chwilę obecną dwa pokoje na górze nam wystarczą. Wyznaczona została łazienka, powiększyliśmy nią o lukę 80cm za kominem, tam postanie pralnia.
oto rzut poddasza (na rzuci łazienka ma zła powierzchnię bo teraz jest nieco większa i jest pokazany podział jednego pokoju na dwa mniejsze pokoje)

Dostaliśmy także wizualizację elewacji.
Elewacj bardzo mi się podobają, jest w 100% tym co chcemy mieć.
- od frontu (północ)

-od części ogrodowej (południe)
- od części ogrodowej (wschód)

- od garażu i pomieszczenia gospodarczego (zachód)

Nam to wszystko zaczyna się coraz bardziej podobać.
Jedyne co to głowimy się nad oknami. Jaki rozmiar wybrać? Wstępnie wybraliśmy dwa okna tarasowe 180/220, okna od frontu 120/150, okno łazienkowe 80/120, reszta okien 150/150. Okien połaciowych nie będzie (oj przepraszam jedno w łazience górnej). Okna mają być mniej więcej ustawione symetrycznie względem siebie.
I teraz powstał problem z oknami na górze bo... pokoje będą miały garderoby, które zostaną ulokowane w tych wnękach, które powstały co za tym idzie jedno okno ląduje w garderobie. Nam się to nie podoba, chcemy mieć garderoby bez okien i dwa okna w pokoju, co za tym idzie trzeba je przesunąć co już nie będzie symetryczne. Więc może dać trzy okna na górę 120/150 i jedno będzie w garderobie (jakoś to przeżyję) i dwa będą w pokojach. Jak będą dzieliła jeden pokój na dwa mniejsze pokoje to jedno okna zamuruję i będą wtedy w pokojach okna 120/150. Co o ty sądzicie? Głównie chciałabym poznać zdanie osób, które miały podobne dylematy.
Komentarze